Gas Station/ Garage For Rent - 1220 E Elizabeth Ave #20, Linden City, 07036,

1220 E Elizabeth Ave #20, Linden City, 07036,
Listing photo 2
Listing photo 3
Listing photo 4
Listing photo 5
Listing photo 6
Listing photo 7

Explore this Property

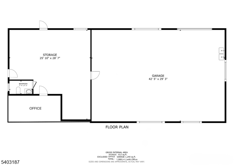
This commercial building at 1220 E. Elizabeth Ave, Linden, NJ (Tenant Occupied: Biz Not Included) features two separate units totaling approximately 3,500+ square feet of versatile space and is not located in a flood zone. The front unit, approximately 1,900 square feet, is configured as a retail store with a large attached storage garage and includes an open garage area of about 1,240 square feet, a 612-square-foot retail area, a dedicated office, high ceilings, one 10-foot-tall garage door, and one bathroom, with multiple access points that support efficient workflow. The rear unit, approximately 1,660 square feet and originally used as an auto body shop, offers a spacious main workspace measuring approximately 50' x 33'9", a paint bay room of approximately 22'3" x 13'1", high ceilings, one garage door, and one bathroom, along with multiple entrances for convenient access. The building features solid construction with a large structural metal support beam and sits on a 60' x 120' lot, allowing the units to operate independently or together. This property is well suited for contractors, automotive-related businesses, retail with service operations, storage, warehousing, distribution, or light industrial uses in a convenient Linden location. Building Class: CB-1S Tax Zone: R-2B Property Class: 4A Built in 1957.

MLS# 4002873
RE/MAX LIFETIME REALTORS
Active For Rent Commercial
$969,900
2 half baths • 3560 sqft
Gas Station/ Garage
1957 Year built
68 days on market
[[ error ]]
[[ success ]]
Loading form…
I consent to receive transactional messages related to my account, orders, or services I have requested. These messages may include appointment reminders, order confirmations, and account notifications among others. Message frequency may vary. Message & Data rates may apply.Reply HELP for help or STOP to opt-out.

Property Features

Area
3560
Roof
Flat
Type
CRE
Acres
0.2
Cooling
No Cool
Heating
2 Units
Lot Size
60X120
Flooring
Concrete
Year Built
1957
Sub Type Text
Gas Station/Garage
Subdivision
Commercial/Light Industrial
Construction
Brick/Block
Garage Spaces
8
Lot Description
Level Lot
Interior Features
Electric, Gas-Natural

Location

Directions: East Baltimore to East Elizabeth

Schools